Te Huur

A. Hofmanweg 7 – HAARLEM

€95,- p.m² p.j.
Omschrijving

OBJECT:
Gelegen op het bedrijventerrein De Waarderpolder bieden wij deze representatieve bedrijfs-/opslagruimte met kantoorruimte aan, gelegen aan de A. Hofmanweg 11 te Haarlem.
Het object is uitermate geschikt voor bedrijven die een functionele, goed bereikbare en representatieve locatie zoeken in de regio Zuid-Kennemerland.

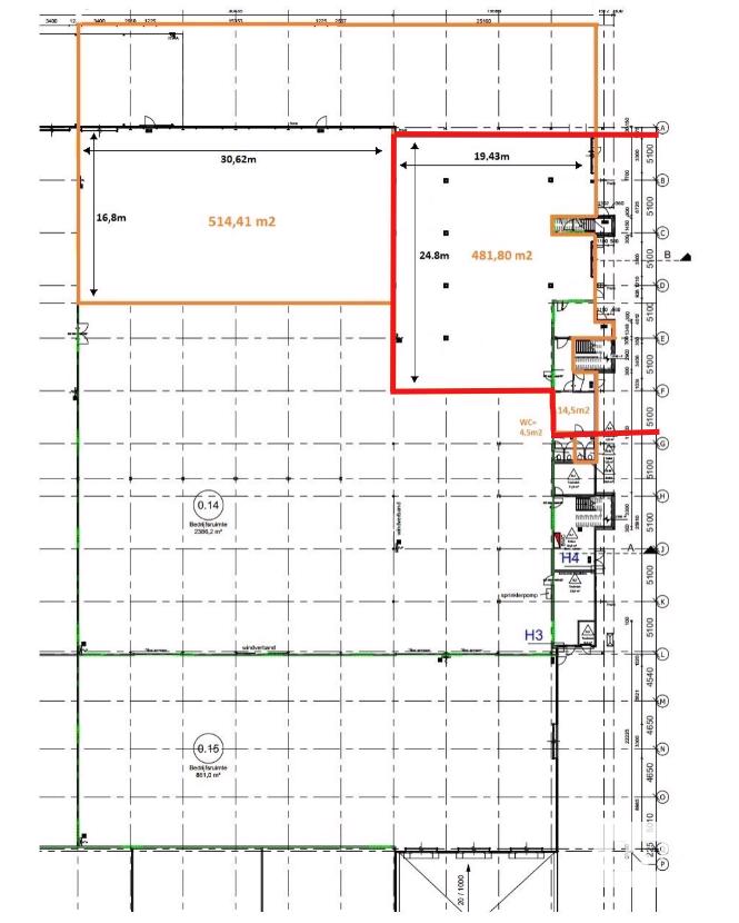
Bedrijfsruimte ca. 1.015m²
Afgesloten buitenterrein ca. 350m²

De bedrijfsruimte beschikt over een solide constructie met een vloerbelasting van circa 3.000 kg/m² en is voorzien van elektrische overheaddeuren, krachtstroomaansluitingen, toiletvoorziening. Dankzij de efficiënte indeling is deze ruimte ideaal voor uiteenlopende bedrijfsactiviteiten zoals opslag, werkplaats of distributie.

VOORZIENINGEN;
-Bedrijfsruimte
-Elektrische overheaddeuren (bedienbaar met handschakelaar);
-Krachtstroomaansluitingen aanwezig;
-Toiletvoorziening;
-Gladde betonvloer met hoge draagkracht (ca. 3.000 kg/m²);
-Representatieve gevel;
-Kantoorruimte mogelijk in overleg
-Aansluitingen voor elektra;

VLOERBELASTING:
De maximale vloerbelasting van de bedrijfsruimte bedraagt circa 3.000 kg/m².
Deze hoge draagkracht maakt de ruimte geschikt voor opslag van zware goederen of industriële toepassingen.

PARKEREN:
Op eigen terrein en in de directe omgeving is vrij parkeren mogelijk.
Daarnaast zijn er op het terrein meerdere parkeerplaatsen direct bij de unit beschikbaar, wat zorgt voor optimaal gebruiksgemak voor personeel en bezoekers.

LOCATIE:
De bedrijfsruimte is gelegen op het hoogwaardige bedrijventerrein De Waarderpolder, het grootste en belangrijkste bedrijventerrein van Zuid-Kennemerland.
Op het terrein zijn ruim 1.100 bedrijven gevestigd, goed voor circa 14.500 arbeidsplaatsen – bijna een kwart van de werkgelegenheid in Haarlem.

BEREIKBAARHEID
De Waarderpolder is uitstekend bereikbaar, zowel met de auto als met openbaar vervoer:
• Direct gelegen aan de A200, met aansluitingen op de A9, A5 en A4;
• 10 minuten rijden naar Amsterdam en Schiphol;
• Station Haarlem Spaarnwoude (Waarderpolder) op korte afstand;
• Snelle busverbindingen (R-net) richting Amsterdam, Schiphol en IJmuiden;
• Fietsafstand van ca. 10 minuten tot de Haarlemse binnenstad;
• Dankzij de Schoterbrug is de bereikbaarheid vanuit het noorden (Bloemendaal, Velserbroek, Santpoort) sterk verbeterd.

Kortom: een locatie die logistiek en strategisch ideaal is voor elk type bedrijf dat actief is binnen de Randstad.

SERVICEKOSTEN
Servicekosten zijn nader te bepalen.
Eventuele bijdragen voor parkmanagement, terreinonderhoud en collectieve beveiliging worden in overleg vastgesteld.

HUURVOORWAARDEN
Betaling per maand bij vooruitbetaling;
Huurtermijn in overleg;
Huurovereenkomst conform het standaardmodel van de Raad voor Onroerende Zaken (ROZ);
Jaarlijkse huurprijsaanpassing volgens de CPI-index (CBS, reeks alle huishoudens, 2015 = 100);
Zekerheidsstelling: waarborgsom ter hoogte van drie maanden huur en servicekosten, vermeerderd met BTW;
Oplevering in huidige staat of in overleg met verhuurder aan te passen;
Aanvaarding: in overleg.

BEZICHTIGING
Bezichtiging is uitsluitend mogelijk op afspraak.
Neem voor meer informatie of het plannen van een bezichtiging contact op met de makelaar.

BTW
Wel van toepassing.

DISCLAIMER
Hoewel aan de samenstelling en inhoud van deze omschrijving de grootst mogelijke zorg is besteed, kunnen aan de inhoud geen rechten worden ontleend.
Afbeeldingen, tekeningen en teksten dienen ter indicatie. Eventuele fouten of tussentijdse wijzigingen voorbehouden.

Kenmerken

Functie Bedrijfsruimte
Voorzieningen
  • Loading docks
  • Overheaddeuren
  • Betonvloer
  • Toilet
Plaats Haarlem
Service kosten notatie Per vierkante meters per jaar

Verhuur

8,8

Lokale marktkennis

9

Deskundigheid

8,9

Service en begeleiding

9

Prijs/ kwaliteit

8,3

Vraag de brochure aan

Verhuur

8,8

Lokale marktkennis

9

Deskundigheid

8,9

Service en begeleiding

9

Prijs/ kwaliteit

8,3

Delen