Verhuurd

Domineeslaan 91 – ZWANENBURG

€2.166,- p.m
Omschrijving

OBJECT:
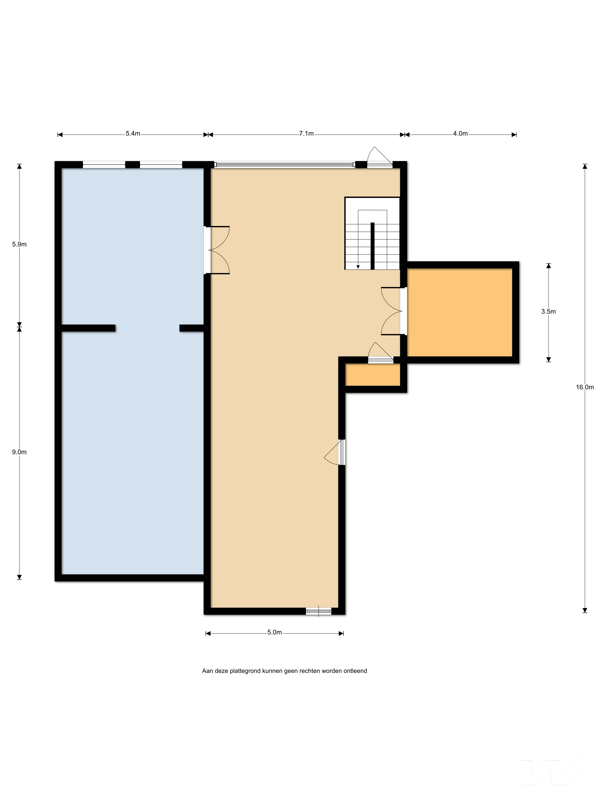
Nette bedrijfsruimte van circa 171 m², gelegen op de begane grond van een representatief en markant bedrijfspand aan de rand van het bedrijventerrein ‘De Weeren’ te Zwanenburg.
De bedrijfsruimte is praktisch ingedeeld en beschikt over een elektrische overheaddeur, waardoor het object geschikt is voor diverse bedrijfsdoeleinden, waaronder opslag en lichte bedrijfsactiviteiten. De ligging aan de rand van het terrein biedt een goede bereikbaarheid en een prettige werkomgeving.
Door de centrale ligging ten opzichte van Amsterdam, Haarlem en Schiphol is het object uitstekend gesitueerd voor ondernemers die waarde hechten aan een goede ontsluiting en bereikbaarheid.

VOORZIENINGEN:
- overheaddeur (elektrisch);
- krachtstroom;
- brandblusvoorzieningen;
- toilet.

SERVICEKOSTEN:
Ten behoeve van:
- Gas, water en elektriciteitsverbruik inclusief vastrecht ten behoeve van de installaties en de verlichting van de
gemeenschappelijke ruimten.
- Onderhoud en periodieke controle van verwarmings- en/of luchtbehandelingsinstallatie(s).
- Idem van brandmelders.
- Sanitaire voorzieningen zoals WC papier, zeep, e.d.
- Schoonmaakkosten van de gemeenschappelijke ruimten in de centrale hal, liften, beglazing buitenzijde alsmede de
zonwering, beglazing, gemeenschappelijke ruimten, terrassen, parkeerkelder en/of terrein.
- Verzorging huisvuil, containerverhuur e.d.
- Assurantiepremie buitenbeglazing.
- Administratiekosten ad 5% over de hierboven genoemde leveringen en diensten.

BEREIKBAARHEID
Het pand is gunstig gelegen nabij Schiphol / Amsterdam, met een directe aansluiting op de A200 (Haarlem - Amsterdam) en de rijksweg A9. De bereikbaarheid van het object per auto is goed. Luchthaven Schiphol en Amsterdam liggen slechts op 10 autominuten afstand. Dit geldt tevens voor Amsterdam en Haarlem. De bereikbaarheid per openbaar vervoer is uitstekend sinds de komst van het nieuwe NS station Halfweg - Zwanenburg.

PARKEREN:
Gedeeltelijk op eigen terrein, gedeeltelijk op openbaar terrein.

BTW:
Wel van toepassing.

HUURVOORWAARDEN:
• Per maand bij vooruitbetaling te voldoen.
• Huurtermijn in overleg.
• Huurovereenkomst Conform het standaardmodel van de Raad van Onroerende Zaken (ROZ).
• Huurprijsaanpassing vindt jaarlijks plaats op basis van de consumentenprijsindex (CPI) reeks alle
huishoudens (2006=100), gepubliceerd door het Centraal Bureau voor de Statistiek (CBS).
• Zekerheidsstelling: waarborgsom ten bedrage van 3 maanden huur en servicekosten te
vermeerderen met omzetbelasting.
• Aanvaarding in overleg.
• Oplevering in overleg.

BEZICHTIGING:
Uitsluitend op afspraak.

Disclaimer:
Hoewel aan de samenstelling en inhoud van deze omschrijving de grootst mogelijke zorg is besteed, kunnen wij niet aansprakelijk worden gesteld voor onverhoopte fouten en gebreken, noch kunnen aan de inhoud rechten worden ontleend. Alle opgegeven maten en oppervlakten zijn indicatief.

Kenmerken

Functie Bedrijfsruimte
Voorzieningen
  • Loading docks
  • Overheaddeuren
  • Krachtstroom
  • Betonvloer
  • Toilet
  • Pantry
Plaats Zwanenburg
Service kosten €700
Service kosten notatie Per maand

Verhuur

8,8

Lokale marktkennis

9

Deskundigheid

8,9

Service en begeleiding

9

Prijs/ kwaliteit

8,3

Vraag de brochure aan

Verhuur

8,8

Lokale marktkennis

9

Deskundigheid

8,9

Service en begeleiding

9

Prijs/ kwaliteit

8,3

Delen