Te Huur
Object:
Te huur: representatieve kantoorruimte van ca. 220 m² op de 1e verdieping aan de Henk Schijvenaarstraat 1 te Haarlem.
De kantoorruimte maakt onderdeel uit van het bekende voormalige Droste-terrein, een gebied dat in 2007 en 2008 is herontwikkeld tot een levendige omgeving met wonen, horeca, kantoorruimte en bedrijfsfuncties. Het terrein ligt aan het Spaarne en evenwijdig aan de Oudeweg en het spoor, op een markante locatie aan de noordoostzijde van Haarlem en is op loopafstand van het station.
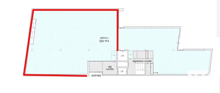
De beschikbare ruimte betreft kantoorruimte op de 1e verdieping met een totale oppervlakte van circa 220 m². De ruimte kenmerkt zich door een efficiënte indeling en biedt diverse mogelijkheden voor het creëren van een prettige en functionele werkomgeving. Dankzij de ruime opzet is de kantoorruimte geschikt voor uiteenlopende typen organisaties, van kleine tot middelgrote ondernemingen.
Aan het begin van de fotoreeks staat een impressie van hoe de ruimte eruit zal komen te zien na de verbouwing (01-06-2026).
Het gebouw heeft een representatieve uitstraling en ligt op een goed bereikbare locatie nabij belangrijke uitvalswegen en de binnenstad van Haarlem. Hierdoor vormt het object een aantrekkelijke vestigingsplek voor ondernemers die een goed bereikbare kantoorlocatie zoeken.
Voorzieningen:
- Kantoorruimte op de 1e verdieping
- Totale oppervlakte circa 220 m²
- Representatieve werkomgeving
- Efficiënte en praktische indeling
- Gelegen in een multifunctioneel bedrijfsgebouw
- Moderne pantry
Locatie:
De Henk Schijvenaarstraat is gelegen aan de noordoostzijde van Haarlem, op het voormalige Droste-terrein. Dit gebied ligt aan één van de belangrijkste toegangswegen naar de binnenstad en kenmerkt zich door een mix van wonen, horeca, kantoren en bedrijfsruimte.
De bereikbaarheid is uitstekend. Via de nabijgelegen Oudeweg en A200 is er een snelle verbinding naar de Rijksweg A9 richting Amsterdam, Alkmaar en Schiphol. Ook met het openbaar vervoer is de locatie goed bereikbaar; het NS-station Haarlem bevindt zich op korte afstand en in de directe omgeving zijn diverse busverbindingen aanwezig.
Bezichtiging:
Uitsluitend op afspraak.
Disclaimer:
Hoewel aan de samenstelling en inhoud van deze omschrijving de grootst mogelijke zorg is besteed, kan de uitgever niet aansprakelijk worden gesteld voor onverhoopte fouten en gebreken, noch kunnen aan de inhoud rechten worden ontleend.
| Functie | Kantoorruimte |
| Voorzieningen |
|
| Plaats | Haarlem |
| Service kosten | €55 |
| Service kosten notatie | Per vierkante meters per jaar |
8,8