Te Huur

Waarderveldweg 99

€120,- p.m² p.j.
Omschrijving

OBJECT:

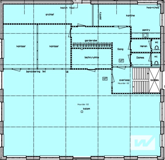
Op de tweede én bovenste verdieping van het representatieve kantoorgebouw aan de Waarderveldweg 99 te Haarlem bieden wij een zeer nette en instapklare kantoorruimte van circa 287 m² te huur aan. De unit beschikt over 4 eigen parkeerplaatsen en is daarmee uitstekend bereikbaar voor personeel en bezoekers.
De ruimte is efficiënt ingedeeld en voorzien van onder andere vloerbedekking, twee moderne spreek-/vergaderruimtes en een pantry. Dankzij de grote raampartijen geniet het kantoor van veel daglicht, wat bijdraagt aan een prettige werkomgeving.
In overleg met de verhuurder is het tevens mogelijk om een naam- of logo-aanduiding op de gevel te realiseren, wat zorgt voor extra zichtbaarheid van uw organisatie.

VOORZIENINGEN:
– eigen entree op de begane grond;
– trap naar de verdieping;
– gerenoveerde toiletgroep;
– pantry voorzien van o.a. combimagnetron en vaatwasser;
– systeemplafond met ledverlichting;
– indeling met (deels-) glaswanden;
– te openen ramen;
– elektrisch bedienbare zonwering aan de buitenzijde;
– opslagruimte v.v. houten stellingkasten;
– vloerbedekking;
– netwerkbekabeling en patchkast.

HUURPRIJS:
De huurprijs bedraagt € 120,00 per m² per jaar exclusief servicekosten, te vermeerderen met omzetbelasting.
De vermelde huurprijs betreft een ingroeihuur. Afhankelijk van de overeengekomen huurperiode zal de huurprijs gedurende de looptijd stapsgewijs meegroeien naar marktniveau. Nadere voorwaarden en staffel op aanvraag beschikbaar.

LOCATIE:
De Waarderpolder is het grootste bedrijventerrein van Zuid-Kennemerland en de banenmotor van Haarlem. Er zijn ruim 1100 bedrijven gevestigd. Hier verdienen zo’n 14.500 mensen hun brood, bijna een kwart van de werkgelegenheid in de stad. Twee prijzen won de Waarderpolder. Beste herstructureringsproject in de Metropoolregio Amsterdam (in 2015) en de Award Beste Geherstructureerde Bedrijventerrein van Nederland 2009-2011 (in 2009).
Doorslaggevend voor het winnen van beide prijzen was de verregaande samenwerking in de Waarderpolder in de vorm van Parkmanagement.

BEREIKBAARHEID:
De Waarderpolder ligt ideaal ten opzichte van de grote steden in de Randstad en Schiphol, heeft goede verbindingen, volop parkeergelegenheid en de gezellige binnenstad ligt op een paar minuten afstand. Gelegen direct bij de A-200 en de A-9 en 10 minuten van Amsterdam en Schiphol.

EIGEN TREINSTATION:
Haarlems enige businesspark heeft een eigen treinstation – Haarlem Spaarnwoude. Snelle busverbindingen van R-net zijn er onder meer met Schiphol, Amsterdam Bijlmer Arena, Amsterdam Zuid en IJmuiden. Haarlem heeft in totaal vijf R-netverbindingen (lijnen 300, 340, 346, 356 en 385) die alle vijf een halte hebben op NS station Haarlem Centraal. Vanaf de Haarlemse knooppunten rijd je met een lijnbus (lijn 15) of per (deel)fiets verder de Waarderpolder in. Met de fiets vanuit de stad of vanuit een van de omliggende gemeenten, rijd je over vrij liggende fietspaden naar je bestemming.

PARKEREN: Er zijn 4 parkeerplaatsen aanwezig. Deze zijn te huur voor € 500,- per plek per jaar excl. BTW.

BTW: van toepassing.

SERVICEKOSTEN:
Voorschot indicatief van € 35,- per m² per jaar excl. btw t.b.v.:
– levering van elektra, na aftrek teruglevering (opwekking elektra met zonnepanelen);
– levering van gas (back-up) ingeval van geen gebruik warmtepomp(en);
– aandeel verbruik water op basis van fair-use;
– periodieke keuringen van installaties;
– periodiek onderhoud van installaties;
– glasverzekering (gevel);
– schoonmaak gemeenschappelijke ruimten (indien van toepassing);
– verlichting gemeenschappelijke ruimten (indien van toepassing);
– glasbewassing buitengevel en zonnepanelen;
– onderhoud buitenterrein/hekwerken;
– beveiliging;
– 5% administratiekosten.

Verbruik van gas en elektra wordt via tussenmeters geregistreerd. Overige kosten worden op basis van oppervlak verrekend.

ENERGIELABEL: A+++

HUURVOORWAARDEN:
• Per maand bij vooruitbetaling te voldoen.
• Huurtermijn is vijf jaar met mogelijkheid van verlenging.
• Huurovereenkomst Conform het standaardmodel van de Raad van Onroerende Zaken (ROZ).
• Huurprijsaanpassing vindt jaarlijks plaats op basis van de consumentenprijsindex (CPI) reeks alle huishoudens
(2015=100), gepubliceerd door het Centraal Bureau voor de Statistiek (CBS).
• Zekerheidsstelling: waarborgsom of bankgarantie ten bedrage van 3 maanden huur en servicekosten te vermeerderen
met omzetbelasting.
• Aanvaarding in overleg.
• Oplevering in huidige staat.
• Huurder dient zich te conformeren aan de eisen die de brandverzekering stelt.
• Er wordt een allonge met betrekking tot gebruikelijke verzekeringsvoorwaarden getekend.

BESTEMMING:
Bestemmingsplan: Bedrijventerrein Waarderpolder, vastgesteld bij raadsbesluit d.d. 18.2.2010 nummer 2010/12664, geeft o.a. aan bedrijven, zijnde een onderneming waarbij het accent ligt op het vervaardigen, ontwerpen, bewerken, installeren, opslaan en/ of verhandelen van goederen. Eventuele detailhandelsactiviteiten vinden daarbij uitsluitend plaats als ondergeschikt onderdeel van de onderneming in de vorm van verkoop c.q. levering van ter plaatse vervaardigde, bewerkte of herstelde goederen, dan wel goederen die in rechtstreeks verband staan met die uitgeoefende handelingen. Voor overig gebruik raadpleeg het bestemmingsplan.

BEZICHTIGING:
Uitsluitend op afspraak.

Disclaimer:
Hoewel aan de samenstelling en inhoud van deze omschrijving de grootst mogelijke zorg is besteed, kunnen wij niet aansprakelijk worden gesteld voor onverhoopte fouten en gebreken, noch kunnen aan de inhoud rechten worden ontleend.

Kenmerken

Functie Kantoorruimte
Voorzieningen
Te openen ramen
Toilet
Pantry
Energielabel A+++
Plaats Haarlem
Service kosten €35
Service kosten notatie Per vierkante meters per jaar

Verhuur

8,8

Lokale marktkennis

9

Deskundigheid

8,9

Service en begeleiding

9

Prijs/ kwaliteit

8,3

Vraag de brochure aan

Verhuur

8,8

Lokale marktkennis

9

Deskundigheid

8,9

Service en begeleiding

9

Prijs/ kwaliteit

8,3

Delen