Te Huur

Wagenweg 250 – HAARLEM

€72.500,- p.j
Omschrijving

Te Huur: Kantoorvilla “Nijenhove” – Wagenweg 250, Haarlem

Een statige kantoorvilla met prestige, historie en zichtlocatie

Aan de markante hoek van de Wagenweg, direct naast de Westelijke Randweg, verrijst de indrukwekkende kantoorvilla Nijenhove. Deze in 1915 gebouwde villa, oorspronkelijk in opdracht van Albert Heijn, is een herkenbaar icoon in Haarlem klassiek, stijlvol en met een representatieve grandeur die zelden nog te vinden is.

De indrukwekkende oprijlaan, de groene omliggende tuin en de royale parkeergelegenheid op eigen terrein versterken het exclusieve karakter van deze unieke kantoorlocatie. Binnen wacht een combinatie van authentieke allure en modern comfort hoge plafonds, grote raampartijen, royale ruimtes en een aangename lichtinval creëren een werkomgeving die inspireert én indruk maakt.

De villa ademt de ambacht en grandeur van het originele ontwerp, terwijl de solide architectuur ook vandaag de dag perfect aansluit bij organisaties die waarde hechten aan kwaliteit, uitstraling en professionaliteit.

Gelegen nabij het centrum van Haarlem, op loopafstand van de Haarlemmerhout en met directe aansluiting op de belangrijkste uitvalswegen richting Amsterdam, Schiphol en de regio, biedt deze locatie een perfecte balans tussen representativiteit en bereikbaarheid.

OPLEVERNIVEAU
In begin 2026?wordt Wagenweg 250 gerenoveerd en op hoogwaardig niveau in ere hersteld, vergelijkbaar met het afwerkingsniveau zoals nummer 252. Het klassieke gevelbeeld, de stijlvolle detaillering en de hoogwaardige afwerking worden met zorg teruggebracht, zodat het pand weer de grandeur krijgt die het verdient. (Zie foto 32 t/m 33)

VOORZIENINGEN
Dit unieke pand is volledig uitgerust met alle essentiële voorzieningen waaronder:
- zelfstandige ingang;
- parkeergelegenheid;
- archiefkelder;
- eigen installaties;
- toiletten;
- keuken;
- dakterras.

BESCHIKBAARHEID
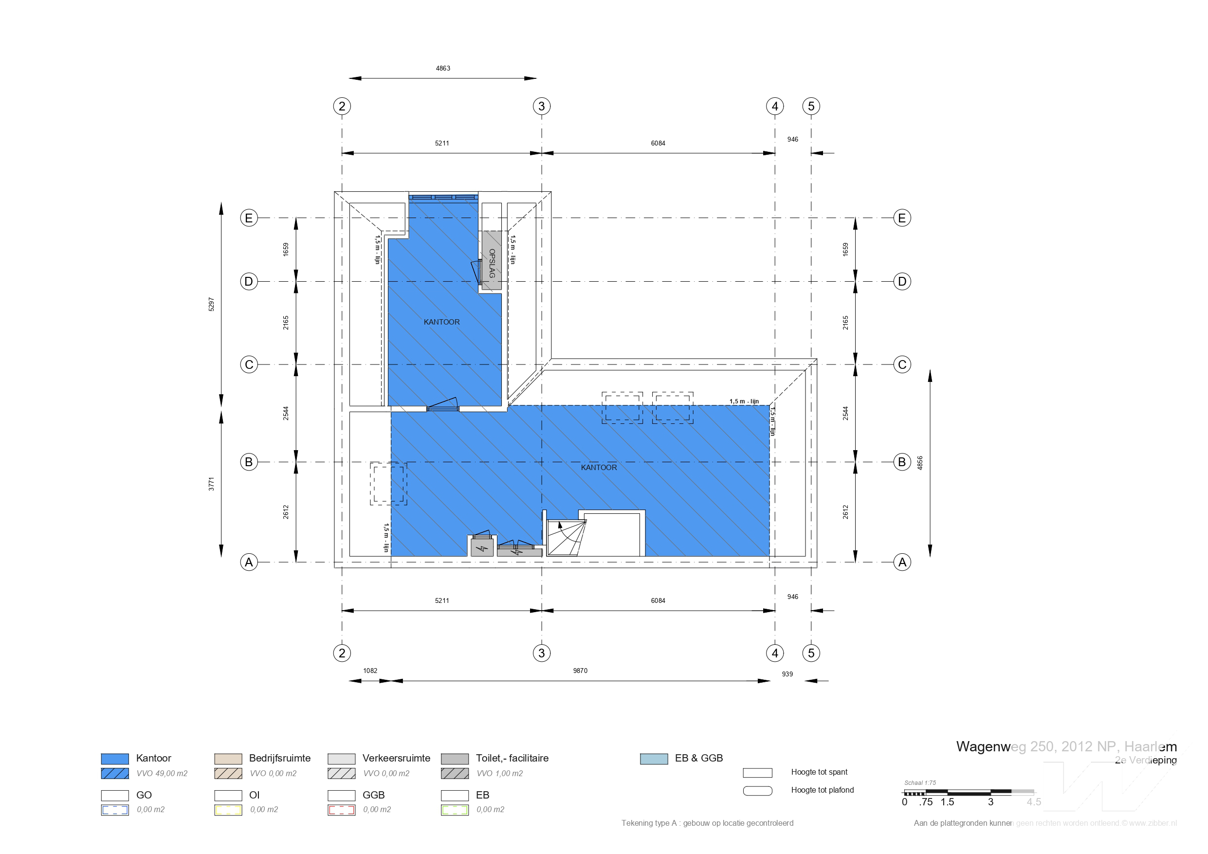
Wagenweg 250 biedt circa 290 m² VVO aan representatieve kantoorruimte die beschikbaar komt voor de verhuur. De ruimte wordt op hoogwaardig niveau opgeleverd en is uitermate geschikt voor organisaties die een onderscheidende, professionele huisvesting zoeken. De huurprijs bedraagt € 72.500 per jaar, exclusief btw en servicekosten. Huurders profiteren van 10 parkeerplaatsen op eigen terrein, beschikbaar voor € 1.500,- per parkeerplaats per jaar, wat bijdraagt aan een comfortabele en uiterst toegankelijke werklocatie.

BEREIKBAARHEID
Wagenweg 250 is uitstekend bereikbaar dankzij de prominente ligging op de hoek van de Wagenweg en de Westelijke Randweg. Via deze directe aansluiting zijn Haarlem-Centrum, Amsterdam, Schiphol, Hoofddorp en de gehele regio snel en eenvoudig te bereiken. Ook met het openbaar vervoer is de locatie goed ontsloten: diverse busverbindingen bevinden zich op loopafstand, en zowel station Haarlem als station Heemstede-Aerdenhout liggen binnen enkele minuten fietsen.

BTW:
Wel van toepassing.

SERVICEKOSTEN:
n.t.b.

HUURVOORWAARDEN:
• Per maand bij vooruitbetaling te voldoen.
• Huurtermijn in overleg.
• Huurovereenkomst Conform het standaardmodel van de Raad van Onroerende Zaken (ROZ).
• Huurprijsaanpassing vindt jaarlijks plaats op basis van de consumentenprijsindex (CPI) reeks alle huishoudens
(2015=100), gepubliceerd door het Centraal Bureau voor de Statistiek (CBS).
• Zekerheidsstelling: waarborgsom of bankgarantie ten bedrage van 3 maanden huur en servicekosten te vermeerderen
met omzetbelasting.
• Aanvaarding in overleg.
• Oplevering in huidige staat.

BEZICHTIGING:
Uitsluitend op afspraak.

Disclaimer:
Hoewel aan de samenstelling en inhoud van deze omschrijving de grootst mogelijke zorg is besteed, kunnen wij niet aansprakelijk worden gesteld voor onverhoopte fouten en gebreken, noch kunnen aan de inhoud rechten worden ontleend.

Kenmerken

Functie Kantoorruimte
Voorzieningen
  • Te openen ramen
  • Toilet
  • Pantry
  • Verwarming
  • Kamerindeling
Plaats Haarlem
Service kosten notatie Per vierkante meters per jaar

Verhuur

8,8

Lokale marktkennis

9

Deskundigheid

8,9

Service en begeleiding

9

Prijs/ kwaliteit

8,3

Vraag de brochure aan

Verhuur

8,8

Lokale marktkennis

9

Deskundigheid

8,9

Service en begeleiding

9

Prijs/ kwaliteit

8,3

Delen