Te Huur

Wilhelminastraat 43 – HAARLEM

€28.550,- p.j
Omschrijving

OBJECT
Mooie en zeer lichte kantoorunit gelegen in een monumentaal kantoorgebouw aan de Wilhelminastraat in Haarlem. Het gebouw bevindt zich op loopafstand van het historische stadscentrum. Het pand is enkele jaren geleden volledig gerenoveerd en combineert klassieke architectuur met moderne kantoorgemakken.

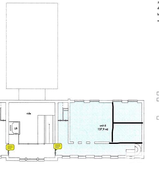
Beschikbaar is één unit van ca. 138 m² v.v.o., gelegen op de 2e verdieping.

VOORZIENINGEN
Fraaie entree met atrium, glazen lift en imposant trappenhuis;
Centrale verwarming;
Toiletten;
Afgesloten parkeerterrein;
Oplevering in huidige staat.

LOCATIE
Het object is gelegen op loopafstand van de binnenstad van Haarlem, nabij diverse winkels, horeca en voorzieningen. Centraal Station Haarlem ligt op ca. 10 minuten loopafstand. Ook met de auto is de locatie uitstekend bereikbaar via de N208, de randweg Haarlem en de A205 richting de A9 naar Amsterdam, Den Haag, Alkmaar en Utrecht.

PARKEREN
Op het afsluitbare achter terrein zijn 11 parkeerplaatsen aanwezig. Voor deze unit geldt een parkeermogelijkheid op basis van beschikbaarheid. Daarnaast is er betaald parkeren mogelijk in de directe omgeving, zoals aan de Wilhelminastraat en in parkeergarage Raaks (op loopafstand). Minimale afname is 2 plekken; €1.500 per plek.

BTW
Wel van toepassing. Indien huurder niet aan het 90%-criterium voldoet, zal er een BTW-compensatie van toepassing zijn.

SERVICEKOSTEN
€ 81,- per m² per jaar als verrekenbaar voorschot, te vermeerderen met BTW, o.a. voor:

Onderhoud liftinstallatie(s);
Onderhoud brandmeld- en blusinstallatie(s);
Onderhoud CV-installatie(s);
Schoonmaken algemene ruimten;
Glasbewassing buitenzijde;
Gas, water en elektra algemeen;
Administratiekosten.

HUURVOORWAARDEN
Huurtermijn: 2 jaar, telkens verlengbaar met 2 jaar (opzegtermijn 13 maanden);
Huurbetaling: per 3 maanden vooruit te vermeerderen met servicekosten en BTW;
Zekerheidsstelling: waarborgsom ter grootte van 3 maanden huur incl. servicekosten en BTW;
Huurprijsaanpassing: jaarlijks op basis van CPI (CBS), min. 2%;
Oplevering: in huidige staat;
Aanvaarding: per direct.

BEZICHTIGING
Uitsluitend op afspraak.

DISCLAIMER
Hoewel aan de samenstelling en inhoud van deze omschrijving de grootst mogelijke zorg is besteed, kunnen wij niet aansprakelijk worden gesteld voor onverhoopte fouten en gebreken, noch kunnen aan de inhoud rechten worden ontleend.

Kenmerken

Functie Kantoorruimte
Voorzieningen
  • Liften
  • Te openen ramen
  • Kabelgoten
  • Systeemplafond
  • Toilet
  • Pantry
  • Verwarming
Luchtbehandeling Mechanische ventilatie
Plaats Haarlem
Service kosten €81
Service kosten notatie Per vierkante meters per jaar

Verhuur

8,8

Lokale marktkennis

9

Deskundigheid

8,9

Service en begeleiding

9

Prijs/ kwaliteit

8,3

Vraag de brochure aan

Verhuur

8,8

Lokale marktkennis

9

Deskundigheid

8,9

Service en begeleiding

9

Prijs/ kwaliteit

8,3

Delen