Te Koop

Zijlweg 103 105 – HAARLEM

€3.300.000,- k.k.
Omschrijving

OBJECT
Karaktervol monumentaal kantoorpand op toplocatie aan de Zijlweg 103-105 te Haarlem.

Aan één van de belangrijkste toegangswegen naar het historische centrum van Haarlem bieden wij dit markante en uitstekend onderhouden monumentale pand te koop aan. Gelegen aan de karakteristieke Zijlweg combineert dit object een representatieve uitstraling met een uitstekende bereikbaarheid en zichtbaarheid.

De ligging is zonder meer uniek: op korte afstand van het bruisende stadscentrum, het Raaksgebied en diverse winkels en horecagelegenheden. Daarnaast zijn uitvalswegen richting Amsterdam, Schiphol en Alkmaar binnen enkele minuten bereikbaar. Ook het openbaar vervoer is goed vertegenwoordigd, met busverbindingen in de directe omgeving en Haarlem Centraal Station op korte afstand.

Monumentaal, representatief en veelzijdig
Het pand betreft een gemeentelijk monument en verkeert in zeer goede staat van onderhoud. De monumentale status komt tot uiting in de fraaie gevel, de royale entree en de vele authentieke details die het gebouw een onderscheidend karakter geven.

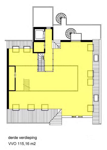
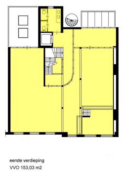
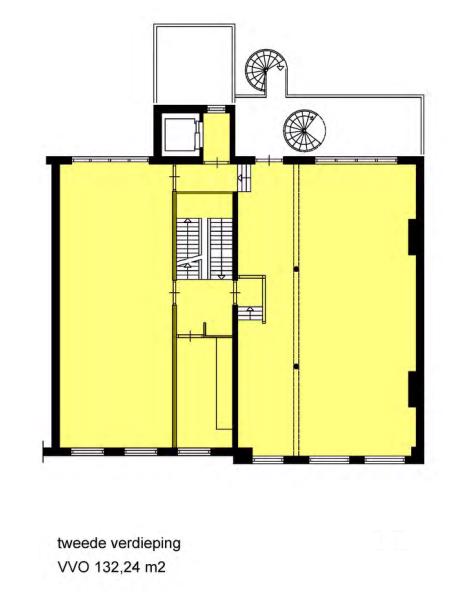
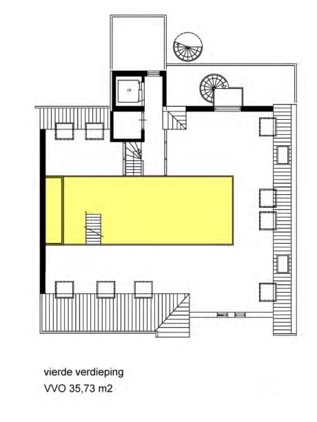
Met een bruto vloeroppervlakte van circa 750 m² en een verhuurbaar vloeroppervlak van circa 622 m² biedt het object volop ruimte en flexibiliteit. De functionele indeling en goede lichtinval maken het pand uitermate geschikt voor diverse vormen van zakelijke dienstverlening. Daarnaast bieden de verdiepingen mogelijkheden voor (gedeeltelijke) wooninvulling, evenals potentiële herontwikkeling naar appartementen, onder voorbehoud van de benodigde vergunningen.

Comfort en gebruiksgemak
Het object beschikt over een representatieve centrale entree op de begane grond, van waaruit de verdiepingen bereikbaar zijn via een karakteristieke monumentale trap en een later aangebrachte, volledig functionerende personenlift.

Verder is het pand voorzien van:
- meerdere pantryvoorzieningen;
- sanitaire voorzieningen;
- verwarmingsinstallaties;
- verlichtingsarmaturen;
- basisinstallaties ten behoeve van kantoorruimte.

Hierdoor is het object instapklaar en direct in gebruik te nemen.

Toekomstige buitenruimte
Achter het pand bevindt zich momenteel nog bebouwing in gebruik als (kousen)fabrieksruimte. Deze opstallen zullen worden gesloopt, waardoor (gedeeltelijk) een aangename buitenruimte ontstaat grenzend aan het pand. Dit biedt extra gebruikskwaliteit en versterkt de beleving van het object aanzienlijk.

Huurstatus en oplevering
Het pand is momenteel verhuurd tot en met 31 december 2026. Aansluitend zal het object leeg en vrij van huur en gebruik worden opgeleverd, waardoor het uitstekend geschikt is voor zowel eigen gebruik als herontwikkeling.

Samenvatting
- Gemeentelijk monument met karakter en uitstraling
- Unieke ligging nabij centrum Haarlem
- Uitstekende bereikbaarheid per auto en OV
- BVO ca. 750 m² | VVO ca. 622 m²
- Geschikt voor kantoor en (gedeeltelijk) wonen
- Voorzien van lift en monumentale trap
- Instapklaar met pantry’s en sanitair
- Toekomstige buitenruimte
- Beschikbaar per 1 januari 2027

Koopsom
€ 3.300.000,- k.k.

Een bijzonder object voor gebruikers en beleggers die waarde hechten aan uitstraling, flexibiliteit en een uitstekende locatie in Haarlem.

BEZICHTIGING
Uitsluitend op afspraak.

DISCLAIMER
Deze informatie is met zorg samengesteld. Aan de inhoud kunnen echter geen rechten worden ontleend.

Kenmerken

Functie Kantoorruimte
Voorzieningen
  • Inbouwarmaturen
  • Liften
  • Te openen ramen
  • Kabelgoten
  • Systeemplafond
  • Toilet
  • Pantry
  • Verwarming
  • Kamerindeling
Luchtbehandeling
  • Airco
  • Mechanische ventilatie
Plaats Haarlem

Verhuur

8,8

Lokale marktkennis

9

Deskundigheid

8,9

Service en begeleiding

9

Prijs/ kwaliteit

8,3

Vraag de brochure aan

Verhuur

8,8

Lokale marktkennis

9

Deskundigheid

8,9

Service en begeleiding

9

Prijs/ kwaliteit

8,3

Delen